ここが注目ポイント!
- コンパクトな敷地に建つ希少な築浅ログハウス。
ログハウス
日本マウントより
- 210万円 DOWN
- ログハウスによる施工、1F間取り変更可能、室内材木のに使用 投資用としても築浅にて、お勧めです。
Gallery
※クリックすると画像が別ウィンドウで最大表示します。
※図面と現況が相違する場合は現況を優先させて頂きます。
※当社の写真を無断で使用、アップロードすることはご遠慮ください。
※Unauthorized copying and replication of the contents of this site, text and images are strictly prohibited.
※当社の写真を無断で使用、アップロードすることはご遠慮ください。
※Unauthorized copying and replication of the contents of this site, text and images are strictly prohibited.
物件概要
| 物件No. | 9694 | ||
|---|---|---|---|
| 所在地 | 千葉県富里市立沢新田 | ||
| 交通 | JR成田線「成田」駅 徒歩8500m [バス利用可] バス 21分 富里郵便局 停歩5分 |
||
| 土地面積 | (公簿)92.57m2 | 他に私道面積 | m2 |
| 建物構造 | 木造 | ||
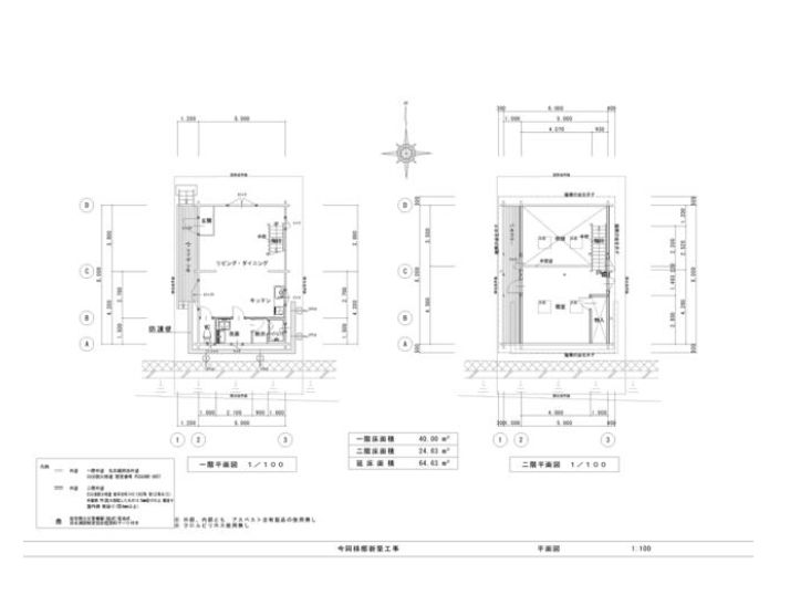
| 建物規模 | 2階建 | 建物面積 | 64.63m2 |
| 土地権利 | 所有権 | 地目 | 宅地 |
| 都市計画 | 非線引区域 | 用途地域 | 無指定 |
| 建ぺい率 | 60% | 容積率 | 200% |
| 地勢 | 平坦 | 環境 | |
| 他の制限 | |||
| 築年月 | 2024年 7月 | 駐車場 | なし |
| 現況 | 空家 | 引渡日 | |
| 接道状況 | 北 6.0m 公道 接面7.3m | ||
| 設備 | プロパンガス 下水道 温水洗浄便座 IHクッキングヒーター、2口コンロ 全居室収納、クローゼット、モニター付インターホン、全居室フローリング エアコン、ウッドデッキ、照明器具、複層ガラス 木製サッシ、木製ドア | ||
| 引渡条件 | 現況渡し | ||
| 備考 |
リフォーム履歴: 内装 2025年4月 清掃済 バルコニー:8m² 主要採光面:西向き 建築確認完了検査済証あり、新築時・増改築時の設計図書あり 防蟻工事 天窓:複層ガラス 飛散防止膜入り(アルミ枠) |
||
| 取引態様 | 仲介 | ||
お電話される方は、「日本マウントのホームページを見て、物件No.9694」とお伝えいただくとスムーズにお応えできます。
MAP
【ご注意】現地の場所は必ずしも正確ではなく、”大体の場所”を示していることがありますので、一度お問い合わせください。
携帯でこの物件を確認したい方は、こちらのQRコードをご利用ください。
この物件の担当者
富永
ひとこと
考えてから行動するタイプですが、行動に入ったらフットワークは軽い方です。仕事に対しては、迅速、正確、丁寧を追求していきます。対人関係においては温厚に接していきます。
この物件に関連するものをピックアップしてみました。
田舎暮らし物件・中古別荘の不動産売買仲介は日本マウントへ





















