ここが注目ポイント!
- 〇敷地内に4棟
- 〇薪ストーブ付物件
薪スト
日本マウントより
- 敷地内に4棟を有する、用途多彩な物件のご紹介です。
・居宅2棟(2DK・ワンルーム)
・物置1棟
・倉庫(作業場)1棟
2DKの居宅には薪ストーブを設置。
あたたかな炎を囲みながら、ゆったりとした時間をお過ごしいただけます。 - ※物件売買価格800万円以下の仲介手数料は一律30万円(税別)をいただきます。(令和6年7月1日改定)
Gallery
※クリックすると画像が別ウィンドウで最大表示します。
※図面と現況が相違する場合は現況を優先させて頂きます。
※当社の写真を無断で使用、アップロードすることはご遠慮ください。
※Unauthorized copying and replication of the contents of this site, text and images are strictly prohibited.
※当社の写真を無断で使用、アップロードすることはご遠慮ください。
※Unauthorized copying and replication of the contents of this site, text and images are strictly prohibited.
物件概要
| 物件No. | 8476 | ||
|---|---|---|---|
| 所在地 | 茨城県鉾田市烟田 | ||
| 交通 | 鹿島臨海鉄道 / 新鉾田駅 徒歩18分 |
||
| 土地面積 | (公簿)515.00m2 | 他に私道面積 | m2 |
| 建物構造 | 木造 | ||
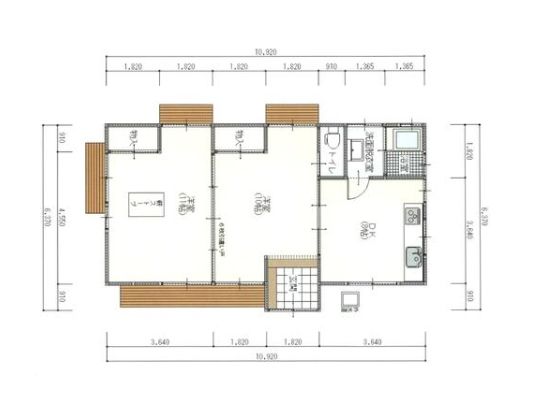
| 建物規模 | 平屋建 | 建物面積 | 61.53m2 |
| 土地権利 | 所有権 | 地目 | |
| 都市計画 | 非線引区域 | 用途地域 | 無指定 |
| 建ぺい率 | 60% | 容積率 | 200% |
| 地勢 | 環境 | ||
| 他の制限 | |||
| 築年月 | 2015年 1月 | 駐車場 | あり |
| 現況 | 空家 | 引渡日 | 相談 |
| 接道状況 | |||
| 設備 | 電気 プロパンガス 浄化槽 トイレ2ヶ所 3口以上コンロ | ||
| 引渡条件 | 現況渡し | ||
| 備考 |
〇その他 ※敷地に4棟あり ・居宅が2棟 (2DK・ワンルーム) ・物置1 ・倉庫(作業場)1 2DKの居宅には薪ストーブあり ※物件売買価格800万円以下の仲介手数料は一律30万円(税別)をいただきます。(令和6年7月1日改定) |
||
| 取引態様 | 仲介 | ||
お電話される方は、「日本マウントのホームページを見て、物件No.8476」とお伝えいただくとスムーズにお応えできます。
MAP
【ご注意】現地の場所は必ずしも正確ではなく、”大体の場所”を示していることがありますので、一度お問い合わせください。
携帯でこの物件を確認したい方は、こちらのQRコードをご利用ください。
この物件の担当者
富永
ひとこと
考えてから行動するタイプですが、行動に入ったらフットワークは軽い方です。仕事に対しては、迅速、正確、丁寧を追求していきます。対人関係においては温厚に接していきます。
この物件に関連するものをピックアップしてみました。
田舎暮らし物件・中古別荘の不動産売買仲介は日本マウントへ






















