ここが注目ポイント!
- 〇閑静な住宅街
日本マウントより
- 茨城県鹿嶋市角折に位置する、敷地約260.55㎡(公簿)の3DK住宅です。
落ち着いた住環境にあり、住宅としてはもちろん、セカンドハウスとしての利用も検討しやすい間取りとなっています。 - ※物件売買価格800万円以下の仲介手数料は一律30万円(税別)をいただきます。(令和6年7月1日改定)
Gallery
※クリックすると画像が別ウィンドウで最大表示します。
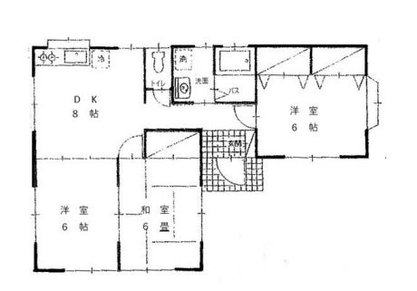
※図面と現況が相違する場合は現況を優先させて頂きます。
※当社の写真を無断で使用、アップロードすることはご遠慮ください。
※Unauthorized copying and replication of the contents of this site, text and images are strictly prohibited.
※当社の写真を無断で使用、アップロードすることはご遠慮ください。
※Unauthorized copying and replication of the contents of this site, text and images are strictly prohibited.
物件概要
| 物件No. | 8424 | ||
|---|---|---|---|
| 所在地 | 茨城県鹿嶋市⼤字⾓折 | ||
| 交通 | 大洗鹿島線 長者ヶ浜潮騒はまなす 駅より徒歩 11分 |
||
| 土地面積 | (公簿)260.55m2 | 他に私道面積 | m2 |
| 建物構造 | 木造 | ||
| 建物規模 | 平屋建 | 建物面積 | 59.62m2 |
| 土地権利 | 所有権 | 地目 | 宅地 |
| 都市計画 | 市街化調整区域 | 用途地域 | 無指定 |
| 建ぺい率 | 60% | 容積率 | 200% |
| 地勢 | 平坦 | 環境 | |
| 他の制限 | |||
| 築年月 | 2000年 10月 | 駐車場 | あり |
| 現況 | 空家 | 引渡日 | 相談 |
| 接道状況 | 一方 私道 接道接面 3m 北 接道幅員 6m | ||
| 設備 | 上水道 プロパンガス 浄化槽 スキッチン,バス・トイレ別,洗面台,洗濯機置場 | ||
| 引渡条件 | 現況渡し | ||
| 備考 |
※物件売買価格800万円以下の仲介手数料は一律30万円(税別)をいただきます。(令和6年7月1日改定) |
||
| 取引態様 | 仲介 | ||
お電話される方は、「日本マウントのホームページを見て、物件No.8424」とお伝えいただくとスムーズにお応えできます。
MAP
【ご注意】現地の場所は必ずしも正確ではなく、”大体の場所”を示していることがありますので、一度お問い合わせください。
携帯でこの物件を確認したい方は、こちらのQRコードをご利用ください。
この物件の担当者
富永
ひとこと
考えてから行動するタイプですが、行動に入ったらフットワークは軽い方です。仕事に対しては、迅速、正確、丁寧を追求していきます。対人関係においては温厚に接していきます。
この物件に関連するものをピックアップしてみました。
田舎暮らし物件・中古別荘の不動産売買仲介は日本マウントへ















