ここが注目ポイント!
- 〇地下室付き・築6年の築浅住宅
- 〇地下室にはホームシアター
- 〇JR平田駅まで徒歩10分、イオンタウンまで車で約5分
標高
日本マウントより
- 松本市村井町北1丁目に位置する、地下室付き・築6年の築浅住宅のご紹介です。
地下室にはホームシアターを備えており、趣味やくつろぎの空間として特別な時間をお楽しみいただけます。
JR平田駅まで徒歩10分、イオンタウンまで車で約5分と、日常の利便性にも優れた立地。
通勤・通学やお買い物にも便利な住環境です。
築浅ならではのきれいな状態も魅力のひとつ。
ぜひ現地にて、地下室の心地よさと住まい全体の魅力をご体感ください。
標高: およそ612m
*標高は必ずしも正確ではございませんので予めご了承ください。
Gallery
※クリックすると画像が別ウィンドウで最大表示します。
※図面と現況が相違する場合は現況を優先させて頂きます。
※当社の写真を無断で使用、アップロードすることはご遠慮ください。
※Unauthorized copying and replication of the contents of this site, text and images are strictly prohibited.
※当社の写真を無断で使用、アップロードすることはご遠慮ください。
※Unauthorized copying and replication of the contents of this site, text and images are strictly prohibited.
物件概要
| 物件No. | 44961 | ||
|---|---|---|---|
| 所在地 | 長野県松本市村井町北1丁目 | ||
| 交通 | JR篠ノ井線 / 平田駅 徒歩10分 |
||
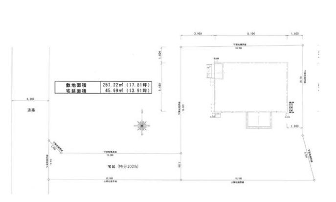
| 土地面積 | (公簿)257.22m2 | 他に私道面積 | m2 |
| 建物構造 | 木造 | ||
| 建物規模 | 地下1階付2階建 | 建物面積 | 112.61m2 |
| 土地権利 | 所有権 | 地目 | 宅地 |
| 都市計画 | 市街化区域 | 用途地域 | 準工業 |
| 建ぺい率 | 60% | 容積率 | 200% |
| 地勢 | 平坦 | 環境 | |
| 他の制限 | |||
| 築年月 | 2019年 10月 | 駐車場 | あり |
| 現況 | 空家 | 引渡日 | 相談 |
| 接道状況 | 西 4.4m | ||
| 設備 | 上水道 電気 プロパンガス 下水道 追焚機能、タンクレストイレ、浴室に窓あり システムキッチン、食器洗浄乾燥機、3口以上コンロ、グリル エアコン2台以上、シューズインクローゼット、クローゼット、モニター付インターホン、 地下室、全居室フローリング、室内物干し、 エアコン、人感センサー付照明、ダウンライト、間接照明、照明器具、火災警報器(報知機)、複層ガラス、Low-E ガラス、ウォークスルークローゼット | ||
| 引渡条件 | 現況渡し | ||
| 備考 |
〇瑕疵保険 瑕疵保険検査基準に適合 瑕疵保険(国交省指定)による保証付 保険期間:10年 保証範囲:構造躯体、雨漏り 保険料:買主負担なし 〇長期優良住宅認定通知書 長期優良住宅認定通知書あり 〇フラット35適合証明書 フラット35適合証明書あり 建物検査実施日:2019年10月24日 〇その他 建築確認完了検査済証あり、修繕・点検の記録あり、新築時・増改築時の設計図書あり |
||
| 取引態様 | 仲介 | ||
お電話される方は、「日本マウントのホームページを見て、物件No.44961」とお伝えいただくとスムーズにお応えできます。
MAP
【ご注意】現地の場所は必ずしも正確ではなく、”大体の場所”を示していることがありますので、一度お問い合わせください。
携帯でこの物件を確認したい方は、こちらのQRコードをご利用ください。
この物件の担当者
酒井ケイ
ひとこと
お客様に有難うと言って頂けるように頑張ります。
主に安曇野・白馬・松本市エリアを担当
この物件に関連するものをピックアップしてみました。
田舎暮らし物件・中古別荘の不動産売買仲介は日本マウントへ































