ここが注目ポイント!
- 〇アメリカンスタイルのフレッシュアップ住宅
- 〇室内は高い天井と大きな窓で、明るく開放感あふれる空間
- 〇広さ、デザイン、利便性の三拍子そろった魅力の住宅
標高
日本マウントより
- 松本市内田に、まさに“邸宅”と呼ぶにふさわしいアメリカンスタイルのフレッシュアップ住宅が登場しました。
(※
外観はおしゃれなラップサイディング仕上げ。
室内は高い天井と大きな窓で、明るく開放感あふれる空間が広がります。
玄関を入るとまず目に入るのは開放的な吹抜け。
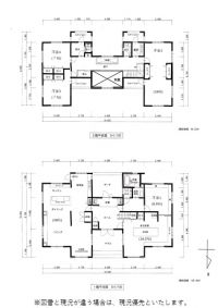
36帖のLDKはアイランドキッチンを備え、ホームパーティーもできるゆとりある設計となっています。
間取りは多目的室を含む5LDKで、大家族にも対応可能。
さらに2階には便利なシャワールームも付いた贅沢な仕様です。
周辺施設も充実しており、
デリシア寿店まで車3分、セブンイレブンまで徒歩4分、八十二銀行まで車3分。
教育環境も良好で、明善小学校まで徒歩5分、明善中学校まで徒歩4分と通学も安心です。
広さ、デザイン、利便性の三拍子そろった魅力の住宅をぜひご覧ください。
〇周辺環境
デリシア寿店1200m(車3分)
セブンイレブン松本牛伏寺下店300m(徒歩4分)
八十二銀行寿支店1000m(車3分)
標高: およそ737m
*標高は必ずしも正確ではございませんので予めご了承ください。
Gallery
※クリックすると画像が別ウィンドウで最大表示します。
※図面と現況が相違する場合は現況を優先させて頂きます。
※当社の写真を無断で使用、アップロードすることはご遠慮ください。
※Unauthorized copying and replication of the contents of this site, text and images are strictly prohibited.

南側外観 南側も左右対称のおしゃれなアメリカンスタイルです。5kwの太陽光発電システムが屋根に設置してありますから電気代が高額なこの時期本当に助かります。家族やお友達を呼んでバーベキューもいいですね。
※当社の写真を無断で使用、アップロードすることはご遠慮ください。
※Unauthorized copying and replication of the contents of this site, text and images are strictly prohibited.
物件概要
| 物件No. | 44950 | ||
|---|---|---|---|
| 所在地 | 長野県松本市大字内田 | ||
| 交通 | JR篠ノ井線 村井駅 から車で約4.4km |
||
| 土地面積 | (公簿)599.03m2 | 他に私道面積 | m2 |
| 建物構造 | 木造スレート葺 | ||
| 建物規模 | 2階建 | 建物面積 | 237.75m2 |
| 土地権利 | 所有権 | 地目 | 宅地 |
| 都市計画 | 市街化区域 | 用途地域 | 第一種中高層住専 |
| 建ぺい率 | 60% | 容積率 | 200% |
| 地勢 | 環境 | ||
| 他の制限 | |||
| 築年月 | 1994年 5月 | 駐車場 | あり6台 |
| 現況 | 空家 | 引渡日 | 即時 |
| 接道状況 | 北側 松本市道4581号線 W=6.5m 接約22.0m 南側 松本市道4709号線 W=4.0m 接約13.5m | ||
| 設備 | 上水道 下水道 システムキッチン,食器洗浄乾燥機,IHクッキングヒーター,追焚機能,トイレ2箇所,温水洗浄便座,シャンプードレッサー,浴室乾燥機, バス1坪以上,床暖房,照明器具付き,駐車場3台分,モニター付きインターホン,新築時・増改築時の設計図書 | ||
| 引渡条件 | 現況渡し | ||
| 備考 |
〇その他 増改築年月/2025年(令和 7年) 9月 上水名義変更料30,000円 電柱有り 〇増改築年月 2025年(令和 7年) 9月 |
||
| 取引態様 | 仲介 | ||
お電話される方は、「日本マウントのホームページを見て、物件No.44950」とお伝えいただくとスムーズにお応えできます。
MAP
【ご注意】現地の場所は必ずしも正確ではなく、”大体の場所”を示していることがありますので、一度お問い合わせください。
携帯でこの物件を確認したい方は、こちらのQRコードをご利用ください。
この物件の担当者
酒井ケイ
ひとこと
お客様に有難うと言って頂けるように頑張ります。
主に安曇野・白馬・松本市エリアを担当
この物件に関連するものをピックアップしてみました。
田舎暮らし物件・中古別荘の不動産売買仲介は日本マウントへ




























