ここが注目ポイント!
- 剃金海岸まで約900m、海徒歩圏の立地・平屋建ての3LDK!
- 太陽光発電付きオール電化住宅・床暖房完備!
- 南側は庭と田園風景が広がり、陽当り・眺望ともに良好です。
新築
Gallery
※クリックすると画像が別ウィンドウで最大表示します。
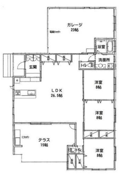
※図面と現況が相違する場合は現況を優先させて頂きます。
※当社の写真を無断で使用、アップロードすることはご遠慮ください。
※Unauthorized copying and replication of the contents of this site, text and images are strictly prohibited.
※当社の写真を無断で使用、アップロードすることはご遠慮ください。
※Unauthorized copying and replication of the contents of this site, text and images are strictly prohibited.
物件概要
| 物件No. | 9750 | ||
|---|---|---|---|
| 所在地 | 千葉県長生郡白子町剃金 | ||
| 交通 | JR外房線「本納」駅より 約10km |
||
| 土地面積 | (公簿)304.16m2 | 他に私道面積 | m2 |
| 建物構造 | 木造 | ||
| 建物規模 | 平屋建 | 建物面積 | 162.72m2 |
| 土地権利 | 所有権 | 地目 | 宅地 |
| 都市計画 | 非線引区域 | 用途地域 | 無指定 |
| 建ぺい率 | 60% | 容積率 | 200% |
| 地勢 | 環境 | ||
| 他の制限 | |||
| 築年月 | 2025年 4月 | 駐車場 | あり駐車スペース2台分、ガレージ内2台分の計4台 |
| 現況 | 空家 | 引渡日 | 相談 |
| 接道状況 | 西側私道 | ||
| 設備 | 上水道 電気 オール電化 アイランドキッチン システムキッチン IHクッキングヒーター シャワー付洗面化粧台 温水洗浄便座 浴室に窓あり 全居室収納 床暖房 エアコン2台以上 庭 | ||
| 引渡条件 | 現況渡し | ||
| 備考 | 主要採光面:南向き | ||
| 取引態様 | 仲介 | ||
お電話される方は、「日本マウントのホームページを見て、物件No.9750」とお伝えいただくとスムーズにお応えできます。
MAP
【ご注意】現地の場所は必ずしも正確ではなく、”大体の場所”を示していることがありますので、一度お問い合わせください。
携帯でこの物件を確認したい方は、こちらのQRコードをご利用ください。
この物件の担当者
富永
ひとこと
考えてから行動するタイプですが、行動に入ったらフットワークは軽い方です。仕事に対しては、迅速、正確、丁寧を追求していきます。対人関係においては温厚に接していきます。
この物件に関連するものをピックアップしてみました。
田舎暮らし物件・中古別荘の不動産売買仲介は日本マウントへ




























