ここが注目ポイント!
- 〇人気エリア 嬬恋村「浅間サンランド」別荘地
- 〇1階は車両4台を収容できる広々としたガレージスペース
- 〇2階には薪ストーブを備えた吹き抜けリビング
- 〇大理石のバーカウンターやIHキッチン、パントリーなど、贅沢な設備を完備
- 〇リビングとつながるデッキはBBQやアウトドアリビングに最適
- 〇別荘地内は除雪が行き届いており、通年利用も可能
薪スト 標高 管理体制
日本マウントより
- 嬬恋村「浅間サンランド」別荘地に佇むガレージ付き別荘
吾妻郡嬬恋村大字鎌原にあるこちらの物件は、車好きなオーナー様が趣味を楽しむために建てられたこだわりの別荘です。
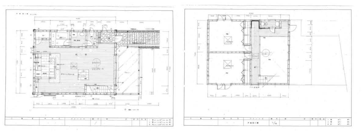
1階は車両4台を収容できる広々としたガレージスペース。
作業スペースとしても活用でき、冬季の寒さから愛車を守るため、二重シャッターを備えた寒冷地仕様の電動シャッターを設置。安心して大切なお車を保管できます。
2階には薪ストーブを備えた吹き抜けリビングが広がり、大理石のバーカウンターやIHキッチン、パントリーなど、贅沢な設備を完備。
リビングとつながるデッキはBBQやアウトドアリビングに最適で、四季折々の自然を満喫できます。
3階は天窓付きのベッドルームが2部屋あり、光あふれる快適なプライベート空間を演出。
サッシはペアガラス仕様で気密性も高く、24時間換気システム(第三種換気方式)を導入しているため、一年を通じて快適にお過ごしいただけます。
別荘地内は除雪が行き届いており、通年利用も可能。
大切に使われてきた物件ですので、そのまま安心してご利用いただけます。
標高: およそ952m
*標高は必ずしも正確ではございませんので予めご了承ください。
Gallery
※クリックすると画像が別ウィンドウで最大表示します。
※図面と現況が相違する場合は現況を優先させて頂きます。
※当社の写真を無断で使用、アップロードすることはご遠慮ください。
※Unauthorized copying and replication of the contents of this site, text and images are strictly prohibited.
※当社の写真を無断で使用、アップロードすることはご遠慮ください。
※Unauthorized copying and replication of the contents of this site, text and images are strictly prohibited.
物件概要
| 物件No. | 6169 | ||
|---|---|---|---|
| 所在地 | 群馬県吾妻郡嬬恋村大字鎌原 | ||
| 交通 | 北陸新幹線 / 軽井沢駅 徒歩27000m |
||
| 土地面積 | (公簿)509.00m2 | 他に私道面積 | m2 |
| 建物構造 | 木造鉄骨造 | ||
| 建物規模 | 3階建 | 建物面積 | 170.09m2 |
| 土地権利 | 所有権 | 地目 | 山林 |
| 都市計画 | 用途地域 | ||
| 建ぺい率 | 50% | 容積率 | 100% |
| 地勢 | 平坦 | 環境 | |
| 他の制限 | |||
| 築年月 | 2007年 6月 | 駐車場 | あり |
| 現況 | 空家 | 引渡日 | 相談 |
| 接道状況 | 西・南・二方道路 | ||
| 設備 | 公営水道 合併浄化槽 トイレ2ヶ所、IHクッキングヒーター、グリル、ルーフバルコニー | ||
| 引渡条件 | 現況渡し | ||
| 備考 |
〇管理費等 別荘地管理費:57,200円/年 固定資産税:確認中(概算8万円) |
||
| 取引態様 | 仲介 | ||
お電話される方は、「日本マウントのホームページを見て、物件No.6169」とお伝えいただくとスムーズにお応えできます。
MAP
【ご注意】現地の場所は必ずしも正確ではなく、”大体の場所”を示していることがありますので、一度お問い合わせください。
携帯でこの物件を確認したい方は、こちらのQRコードをご利用ください。
この物件の担当者
松永
ひとこと
出会いを大切に誠実な対応を心がけてまいります
この物件に関連するものをピックアップしてみました。
田舎暮らし物件・中古別荘の不動産売買仲介は日本マウントへ































