ここが注目ポイント!
- 〇蒼い海と富士山を一望できる高台
- 〇最寄り駅まで徒歩約9分、海まで徒歩約10分、コンビニまで徒歩約7分
- 〇民泊許可取得済み ですので、セカンドハウス利用だけでなく投資用としても◎
富士山 海近 眺望 民泊
日本マウントより
- 710万円 DOWN
- 蒼い海と富士山を一望できる高台に位置する、特別なロケーションの物件です。
全てのお部屋から海と富士山を眺めることができ、海風を感じながら夕陽に染まる景色を堪能できる贅沢な空間。日常を忘れ、ゆったりとした時間をお過ごしいただけます。
アクセスも良好で、最寄り駅まで徒歩約9分、海まで徒歩約10分、コンビニまで徒歩約7分と生活利便性も確保。
さらに、都心からわずか1時間で到着できるため、別荘や週末のリフレッシュにも最適です。
本物件は 民泊許可取得済み ですので、セカンドハウス利用だけでなく投資用としてもご検討いただけます。
海と富士山を望む唯一無二のロケーションを、ぜひ現地でご体感ください。
Gallery
※クリックすると画像が別ウィンドウで最大表示します。
※図面と現況が相違する場合は現況を優先させて頂きます。
※当社の写真を無断で使用、アップロードすることはご遠慮ください。
※Unauthorized copying and replication of the contents of this site, text and images are strictly prohibited.
※当社の写真を無断で使用、アップロードすることはご遠慮ください。
※Unauthorized copying and replication of the contents of this site, text and images are strictly prohibited.
物件概要
| 物件No. | 9691 | ||
|---|---|---|---|
| 所在地 | 千葉県富津市湊 | ||
| 交通 | JR内房線 / 上総湊駅 徒歩9分 館山道ICから4.6Km車で約8分 |
||
| 土地面積 | (公簿)459.00m2 | 他に私道面積 | m2 |
| 建物構造 | 木造 | ||
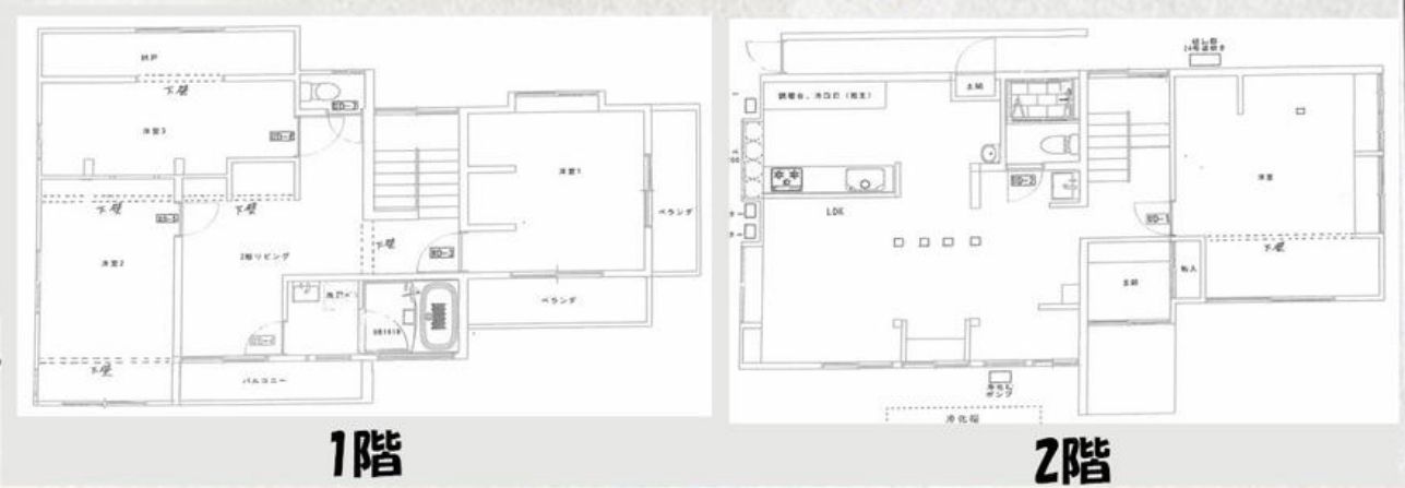
| 建物規模 | 2階建 | 建物面積 | 121.51m2 |
| 土地権利 | 所有権 | 地目 | 宅地 |
| 都市計画 | 都市計画区域外 | 用途地域 | 無指定 |
| 建ぺい率 | 60% | 容積率 | 200% |
| 地勢 | 環境 | ||
| 他の制限 | |||
| 築年月 | 1981年 11月 | 駐車場 | |
| 現況 | 空家民泊営業中 | 引渡日 | 相談 |
| 接道状況 | 北西側幅員約2.5m | ||
| 設備 | 電気 個別LPG 浄化槽 浴室暖房、シャワールーム、トイレ2ヶ所、浴室に窓あり | ||
| 引渡条件 | 現況渡し | ||
| 備考 |
〇その他 6条区域内 崖条例 *図面と現状に相違がある場合は現状優先 |
||
| 民泊 |
民泊可能 |
||
| 取引態様 | 仲介 | ||
お電話される方は、「日本マウントのホームページを見て、物件No.9691」とお伝えいただくとスムーズにお応えできます。
MAP
【ご注意】現地の場所は必ずしも正確ではなく、”大体の場所”を示していることがありますので、一度お問い合わせください。
携帯でこの物件を確認したい方は、こちらのQRコードをご利用ください。
この物件の担当者
富永
ひとこと
考えてから行動するタイプですが、行動に入ったらフットワークは軽い方です。仕事に対しては、迅速、正確、丁寧を追求していきます。対人関係においては温厚に接していきます。
この物件に関連するものをピックアップしてみました。
田舎暮らし物件・中古別荘の不動産売買仲介は日本マウントへ














