ここが注目ポイント!
- 〇民泊可能、富士山眺望
- 〇利回り高い
- 〇山中湖畔道路700m
リフォ済 富士山 標高 収益 民泊
日本マウントより
- 【周辺環境】
◇コンビニ
セブンイレブン山梨山中湖平野店 (2,299m)
◇レジャー・観光
瑞穂テニスクラブ (1,346m)
山中湖美術館 (1,841m)
◇郵便局
平野簡易郵便局 (2,237m)
標高: およそ1017m
*標高は必ずしも正確ではございませんので予めご了承ください。
Gallery
※クリックすると画像が別ウィンドウで最大表示します。
※図面と現況が相違する場合は現況を優先させて頂きます。
※当社の写真を無断で使用、アップロードすることはご遠慮ください。
※Unauthorized copying and replication of the contents of this site, text and images are strictly prohibited.
※当社の写真を無断で使用、アップロードすることはご遠慮ください。
※Unauthorized copying and replication of the contents of this site, text and images are strictly prohibited.
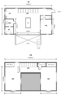
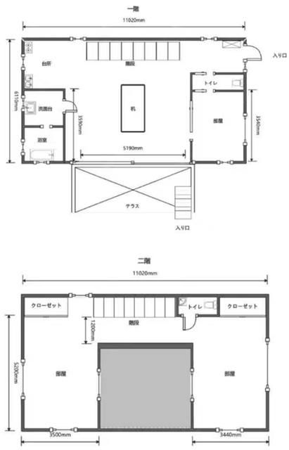
物件概要
| 物件No. | 5475 | ||
|---|---|---|---|
| 所在地 | 山梨県南都留郡山中湖村平野 | ||
| 交通 | 富士急行線「富士山」駅より約1.5㎞ 東富士五湖道路「山中湖」ICから車で約20分 |
||
| 土地面積 | (公簿)821m2 | 他に私道面積 | m2 |
| 建物構造 | 木造 | ||
| 建物規模 | 2階建 | 建物面積 | 121.44m2 |
| 土地権利 | 所有権 | 地目 | 宅地 |
| 都市計画 | 非線引区域 | 用途地域 | 無指定 |
| 建ぺい率 | % | 容積率 | % |
| 地勢 | 環境 | ||
| 他の制限 | |||
| 築年月 | 2002年 7月 | 駐車場 | あり(2台) |
| 現況 | 空家 | 引渡日 | |
| 接道状況 | |||
| 設備 | 上水道 電気 下水道 トイレ2ヶ所、温水洗浄便座、オートバス 浴室に窓、オープンキッチン、クローゼット 照明器具 前面棟無、全室2面採光、隣接建物距離2m以上 | ||
| 引渡条件 | 現況渡し | ||
| 備考 |
小学校:山中湖村立東小学校 3,686m オーナーチェンジ 年間予定賃料収入 597.6万円 年間予定利回り 12% リフォーム:内装 2025年12月完了 (全面(床・壁・天井・建具)) |
||
| 民泊 |
民泊可能 |
||
| 取引態様 | 仲介 | ||
お電話される方は、「日本マウントのホームページを見て、物件No.5475」とお伝えいただくとスムーズにお応えできます。
MAP
【ご注意】現地の場所は必ずしも正確ではなく、”大体の場所”を示していることがありますので、一度お問い合わせください。
携帯でこの物件を確認したい方は、こちらのQRコードをご利用ください。
この物件の担当者
東久保
ひとこと
この物件に関連するものをピックアップしてみました。
田舎暮らし物件・中古別荘の不動産売買仲介は日本マウントへ















