ここが注目ポイント!
- 〇「草笛ランド別荘地内」
- 〇大人気薪ストーブ付ログハウス
ログハウス 薪スト 標高 民泊
日本マウントより
- 70万円 DOWN
- 小諸市大字大久保、草笛ランド別荘地内の平坦地に佇む、
木のぬくもりあふれるLDK+ロフト付きログハウスのご紹介です。
敷地は日当たりが良く、庭には季節の実りを楽しめる柿の木も。
自然豊かな環境の中で、静かに流れる時間を感じながら、
ゆったりとした別荘ライフを堪能できます。
室内には薪ストーブが設置されており、
冬でもポカポカと暖かく、炎のゆらめきが心を癒してくれます。
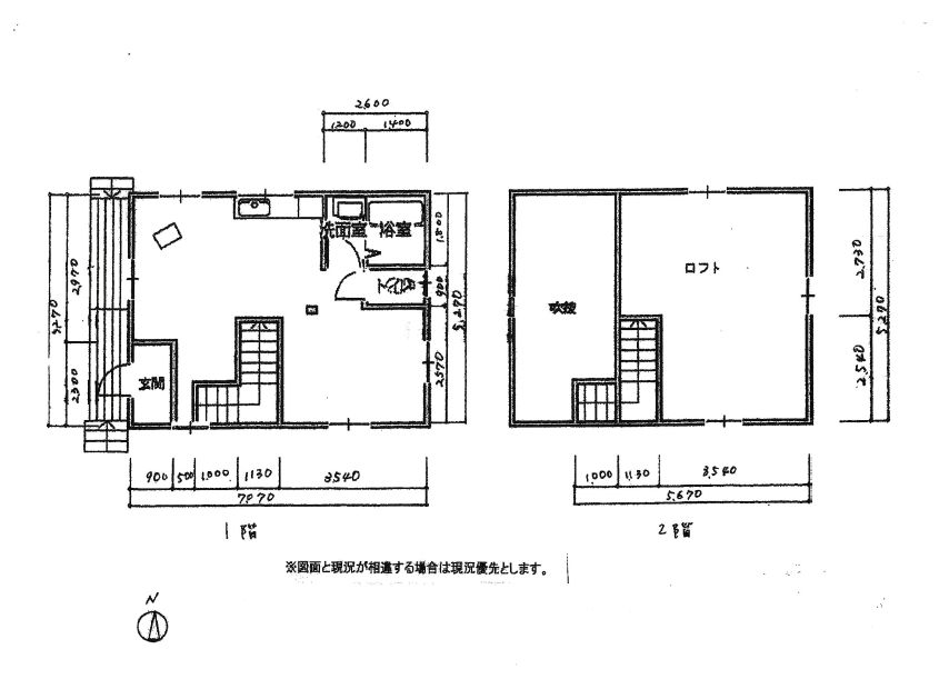
ロフト付きの間取りは、趣味部屋やゲストスペースにも最適。
木の香りに包まれ、鳥のさえずりを聞きながら過ごす休日――
「自然と暮らす」心地よさを、ぜひこのログハウスで体感してください。 - ※物件売買価格800万円以下の仲介手数料は一律30万円(税別)をいただきます。(令和6年7月1日改定)
標高: およそ752m
*標高は必ずしも正確ではございませんので予めご了承ください。
Gallery
※クリックすると画像が別ウィンドウで最大表示します。
※図面と現況が相違する場合は現況を優先させて頂きます。
※当社の写真を無断で使用、アップロードすることはご遠慮ください。
※Unauthorized copying and replication of the contents of this site, text and images are strictly prohibited.
※当社の写真を無断で使用、アップロードすることはご遠慮ください。
※Unauthorized copying and replication of the contents of this site, text and images are strictly prohibited.
物件概要
| 物件No. | 44936 | ||
|---|---|---|---|
| 所在地 | 長野県小諸市大字大久保 | ||
| 交通 | JR小海線 / 小諸駅 徒歩8590m |
||
| 土地面積 | (公簿)341.00mm2 | 他に私道面積 | m2 |
| 建物構造 | 木造 | ||
| 建物規模 | 2階建 | 建物面積 | 62.71m2 |
| 土地権利 | 所有権 | 地目 | 山林 |
| 都市計画 | 非線引区域 | 用途地域 | 無指定 |
| 建ぺい率 | 60% | 容積率 | 100% |
| 地勢 | 平坦 | 環境 | |
| 他の制限 | |||
| 築年月 | 2000年 1月 | 駐車場 | |
| 現況 | 空家 | 引渡日 | 相談 |
| 接道状況 | 北 6.8m 公道 接面22.0m | ||
| 設備 | 上水道 電気 プロパンガス 汲取式 エアコン2台以上 ウッドデッキ 間接照明 照明器具 汲取 インターネット対応 温水洗浄便座 | ||
| 引渡条件 | 現況渡し | ||
| 備考 |
〇その他 LDK+ロフトで個室はないです。 ※物件売買価格800万円以下の仲介手数料は一律30万円(税別)をいただきます。(令和6年7月1日改定) |
||
| 民泊 |
民泊可能 |
||
| 取引態様 | 仲介 | ||
お電話される方は、「日本マウントのホームページを見て、物件No.44936」とお伝えいただくとスムーズにお応えできます。
MAP
【ご注意】現地の場所は必ずしも正確ではなく、”大体の場所”を示していることがありますので、一度お問い合わせください。
携帯でこの物件を確認したい方は、こちらのQRコードをご利用ください。
この物件の担当者
酒井ケイ
ひとこと
お客様に有難うと言って頂けるように頑張ります。
主に安曇野・白馬・松本市エリアを担当
この物件に関連するものをピックアップしてみました。
田舎暮らし物件・中古別荘の不動産売買仲介は日本マウントへ


















